千葉県市川市本北方3丁目 中古戸建
| 価格 | 種別 | 面積/間取り | 築年月 | 建物面積・専有面積 |
|---|---|---|---|---|
| 2,400万円 | 中古戸建 | 60.31㎡ / 2LDK | 1977-01-01 | 60.31㎡ |
物件概要
| 所在地 | 千葉県市川市本北方3丁目 |
|---|---|
| 交通 | JR中央・総武緩行線「下総中山」駅より徒歩6分 バス乗車時間11分 若宮小学校バス停 |
| 価格 | 2,400万円 |
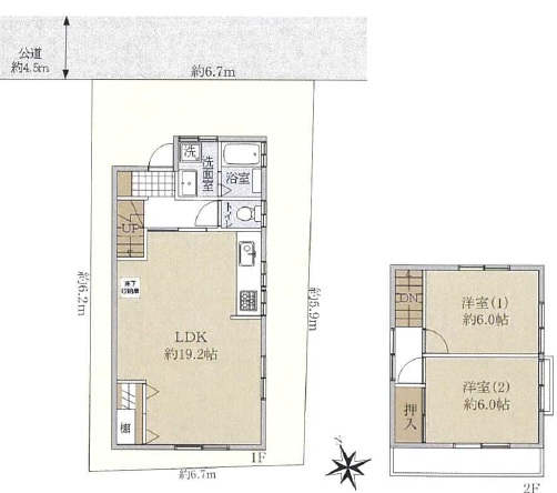
| 間取り | 2LDK |
| 土地面積 | 83.06㎡(公簿) |
| 築年月(築年数) | 1977年1月(築49年) |
| 総戸数/階建 | 地上2階 |
| 新築・中古 | 中古 |
| 構造 | 木造 |
| 現況/入居時期 | 居住中 / 相談 |
| 状態 | 売出中 |
| 延床面積 | 60.31㎡ |
| 用途地域 | 第一種低層住居専用 |
| 土地権利 | 所有権 |
| 建ぺい率 | 50% |
| 容積率 | 100% |
| 接道1 | 方向:北 / 間口:6.7m / 種別:公道 / 幅員:4.5m |
| 接道2 | 幅員:0m |
| 都市計画 | 市街化区域 |
| 建物面積・専有面積 | 60.31㎡ |
日本全国の不動産を取り扱います。 売買・賃貸・投資・管理・ビザ取得は当社へ。
03-6820-4620
営業時間 AM 10:00~PM 10:00
メールでのお問合せ
物件お問合せ
条件に近い物件
