千葉県市川市北国分3丁目 中古戸建
| 価格 | 種別 | 面積/間取り | 築年月 | 建物面積・専有面積 |
|---|---|---|---|---|
| 2,850万円 | 中古戸建 | 90.28㎡ / 2LDK | 2005-06-01 | 90.28㎡ |
物件概要
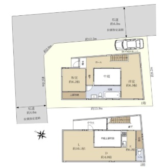
| 所在地 | 千葉県市川市北国分3丁目 |
|---|---|
| 交通 | 北総鉄道北総線「北国分」駅より徒歩10分 北総鉄道北総線「矢切」駅より徒歩16分 |
| 価格 | 2,850万円 |
| 間取り | 2LDK |
| 土地面積 | 120.63㎡(公簿) |
| 築年月(築年数) | 2005年6月(築20年) |
| 総戸数/階建 | 地上2階 |
| 新築・中古 | 中古 |
| 構造 | 木造 |
| 現況/入居時期 | 空室 / 相談 |
| 状態 | 売出中 |
| 備考 | 【駐車場】車種による 角地。ただし、建ぺい率は緩和されません。 |
| 延床面積 | 90.28㎡ |
| 用途地域 | 第一種低層住居専用 |
| 土地権利 | 所有権 |
| 建ぺい率 | 40% |
| 容積率 | 80% |
| 接道1 | 方向:北東 / 間口:12.2m / 種別:私道 / 幅員:4m |
| 接道2 | 方向:北西 / 間口:7m / 種別:私道 / 幅員:4m |
| 都市計画 | 市街化区域 |
| 私道負担面積 | 24㎡ |
| 建物面積・専有面積 | 90.28㎡ |
日本全国の不動産を取り扱います。 売買・賃貸・投資・管理・ビザ取得は当社へ。
03-6820-4620
営業時間 AM 10:00~PM 10:00
メールでのお問合せ
物件お問合せ
条件に近い物件
